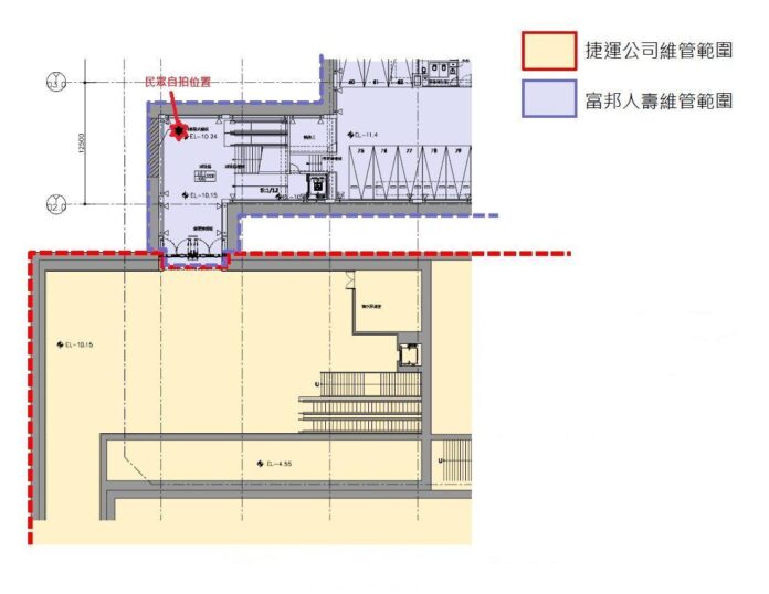
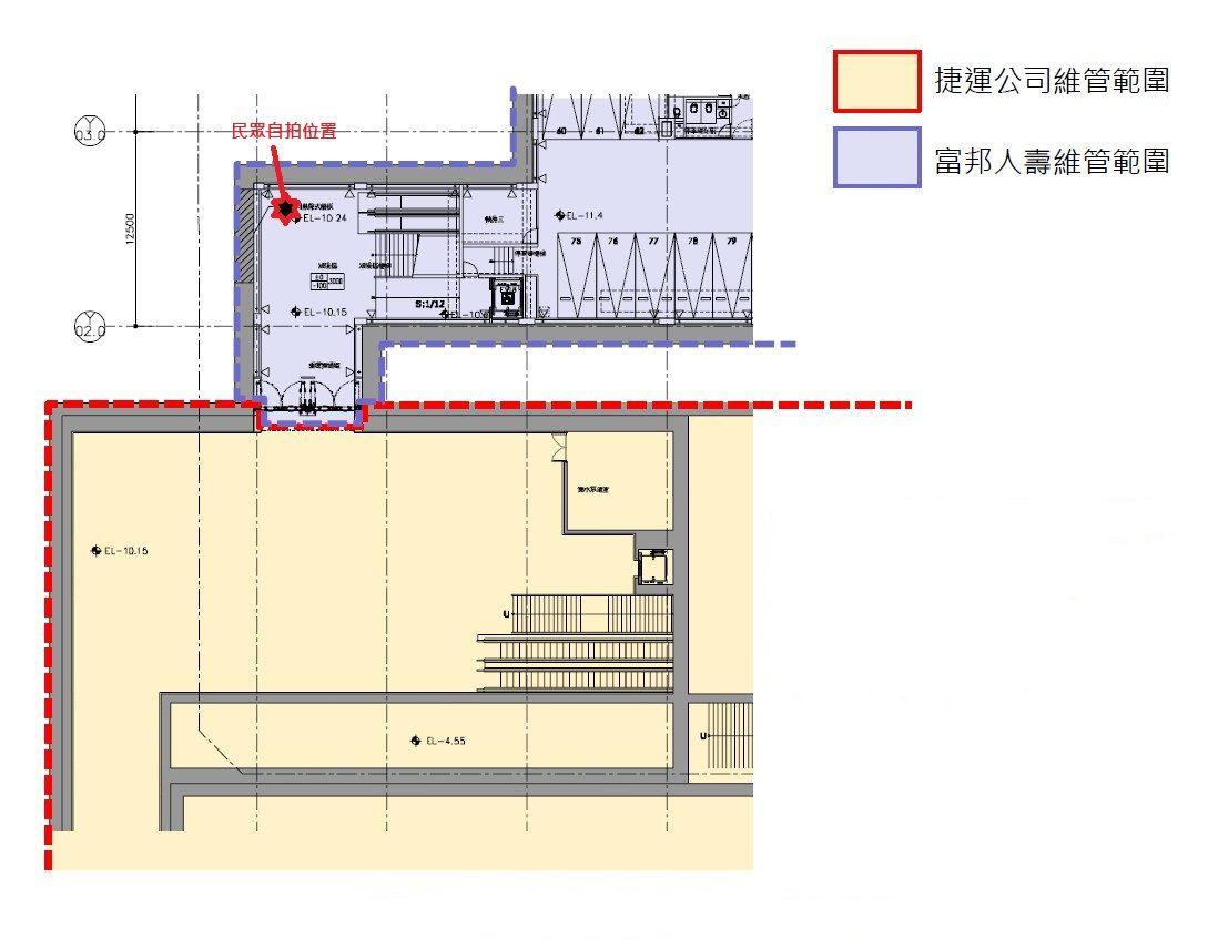
今(13)日有媒體報導,捷運「南京復興站」有民眾拍攝不雅影片,臺北捷運公司鄭重澄清,該地點位於鄰近聯開大樓公共連通道,由富邦人壽保險股份有限公司負責管理維護,並通知該公司留意。臺北捷運公司重申,捷運站內嚴禁拍攝不雅影照片,如發現一律報警處理。
臺北捷運公司一向重視車站安全及公共秩序,捷運系統內禁止類似行為,如經查獲一律報警處理,並依「臺北捷運系統旅客須知」第7項第1款規定,違反法令、公共秩序、善良風俗或本公司旅客運送章則等各項規定者,本公司得拒絕運送,站、車人員並得視情節會同警察人員強制或護送其離開站、車或大眾捷運系統區域。
此外,捷運系統內的服務人員、保全亦定時進行車站巡檢,視需要進行不定時的巡察,如發現類似行為將依相關規定處理,並同步通報警方,絕不輕縱。

                                    